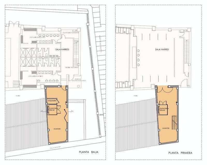
Cuando se construyó la Sala Multiusos “Harresi” estaba previsto adosarle un pequeño edificio de tres alturas en la parte lateral del escenario que sirviera para descargar, almacenar y ascender todo el material escénico que se precisase para las diversas actuaciones y representaciones.





