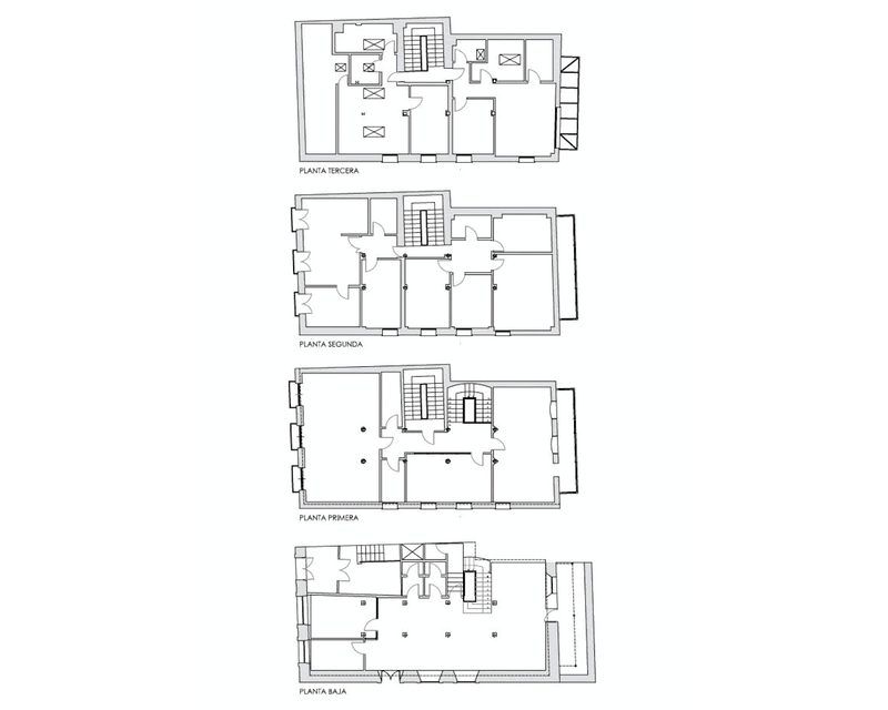
Se efectuó la rehabilitación de todo el inmueble sito en el nº 61 de la calle Cuchillería Ubicando la Sede Social del Club de Montaña Gasteiz en P, Baja y Primera, en Segunda la Asociación de Vecinos Gasteiz Txiki y en la entrecubierta Viviendas.








